Обновление небольшой квартиры 1950-х годов под современные времена

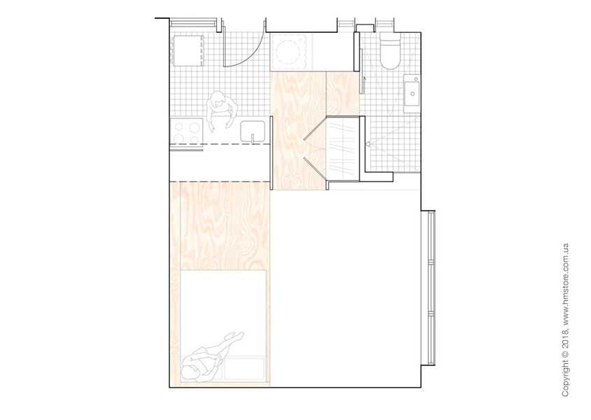
«George» – это одна из нескольких идентичных квартир-студий, в которых в 1950-х годах жили медсестры в Мельбурне (Австралия). Площадь этой квартиры всего 28 кв.м., и она сильно нуждалась в капитальном ремонте, который позволил бы сделать ее пригодной для современных стандартов жизни. Эту задачу взялся выполнять Douglas Wan из «J-IN». Все внутренние стены были снесены, а затем установлены новые стальные балки, благодаря которым интерьер больше не нуждался в несущих конструкциях, которые бы поддерживали потолок. Это сделало помещение открытым для любых планировок.
Новая гостиная занимает огромную часть площади. Она отделена от входной двери коридором из деревянных шкафов. Такая же светлая фанера используется в гостиной в виде навесной многофункциональной конструкции, которая может использоваться как зона отдыха для восьми человек и как спальное место (достаточно просто положить сверху матрац). Вокруг конструкции находится множество места для хранения, которое легко можно скрыть, когда оно не используется.
С другой стороны шкафов находится полностью черная и открытая кухня, в которую поступает достаточно света.
Ванная комната от пола до потолка выложена черной плиткой с красной затиркой, которая создает оригинальный контраст.

Реклама. iStar – графический дизайн и корпоративный брендинг, web-дизайн и разработка сайтов

Реклама. Watch

Отзывы
Ваш комментарий

Чтобы оставлять комментарии Вы должны авторизоваться или зарегистрироваться на сайте