Превращение квартиры 70-х годов в современное жилье со спальным лофтом

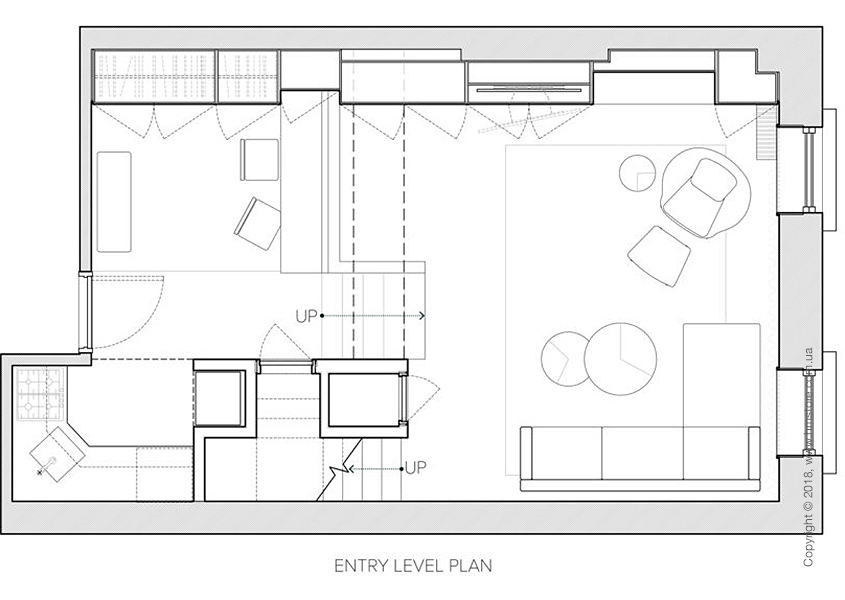
Эта квартира на третьем этаже из 70-х годов будто застряла во времени, прежде чем за нее взялась компания «STADT Architecture». Расположенная в Верхнем Вест-Сайде (Нью-Йорк), эта квартира получила новую планировку, которая разделила ее на три уровня, объединенные полами и панелями из ореховой древесины.
Одна стена гостиной занята белыми встроенными шкафами, которые великолепно контрастируют с теплой ореховой древесиной.
Двумя главными задачами, поставленными перед архитекторами, были увеличение спального лофта и ванной комнаты. Чтобы сделать это возможным, стена, которая соединяется с гостиной, была снесена, а кровать перенесена. Таким образом, удалось получить большую кровать с изголовьем, которое одновременно служит системой для хранения. Это позволило не использовать поручни и, следовательно, увеличить используемое пространство. Открытая сторона лофта теперь используется в качестве удобных шкафов.
Ванная комната была увеличена путем удаления старой лестницы, которая вела из гостиной к лофту. Она была заменена на более удобные ступеньки ближе к гостиной.

Реклама. iStar – графический дизайн и корпоративный брендинг, web-дизайн и разработка сайтов

Реклама. iTunes Gift Card

Отзывы
Ваш комментарий

Чтобы оставлять комментарии Вы должны авторизоваться или зарегистрироваться на сайте