«Villa N1»: Полностью деревянный летний дом в Швеции от «Lindvall A & D»

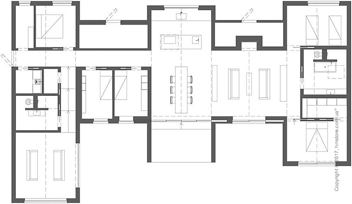
Построенный в качестве летнего дома для семьи на западном побережье Швеции, дом «Villa N1» был спроектирован архитектором Jonas Lindvall из «Lindvall A & D». Он напоминает деревянные амбары, распространенные в этой местности, которые обшиты горизонтальными досками. Этот одноэтажный, полностью деревянный дом занимает площадь 190кв.м. и состоит из пяти структур, соединенных друг с другом в ряд.
В одном конце дома находится хозяйская спальня, а в другом – детская. Между ними располагаются общие помещения. Каждый из «павильонов» имеет традиционную скатную крышу, однако, в целом, весь дом выглядит очень современно.
Не только стены дома созданы из дерева, но и крыша также. Фасадные доски созданы из необработанного дуба, который со временем будет стареть природным образом.
Спальня и комната отдыха расположены на нижнем уровне, что обусловлено ландшафтом. Просторные общие помещения имеют открытую планировку и имеют раздвижные окна от пола до потолка, которые прячутся в стены, убирая границу между интерьером и двором. Стены здесь, а также патио покрыты камнем «Pietra Serena».


Реклама. iStar – графический дизайн и корпоративный брендинг, web-дизайн и разработка сайтов




Реклама. MacBook Air

Отзывы
Ваш комментарий

Чтобы оставлять комментарии Вы должны авторизоваться или зарегистрироваться на сайте